城区住房和城乡建设局

搜索位置
匹配度
排序

晋城市城区住建局关于公租房房源的公示

发布日期: 2026-04-22 发布机构: 区政府直属机构和事业单位

晋城市兰花房地产开发有限公司配建的兰馨家园三期公租房项目、山西古书院置业有限公司配建的书院嘉品·熙樾公租房项目均已交付,户型为一室一厅,房源信息附后。


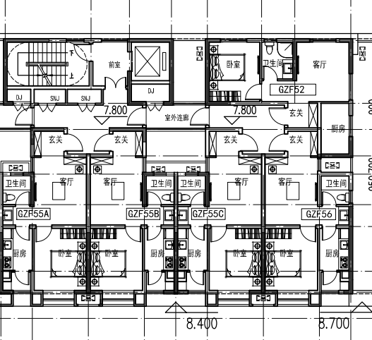
一、兰馨家园三期12号楼公租房

房源明细:

位置图:

户型图:


二、书院嘉品·熙樾13号楼公租房

房源明细:

位置图:

户型图: